LAB
DESIGN
DEVELOPMENT
ABOUT
CONTACT
LAB
DESIGN
DEVELOPMENT
ABOUT
CONTACT
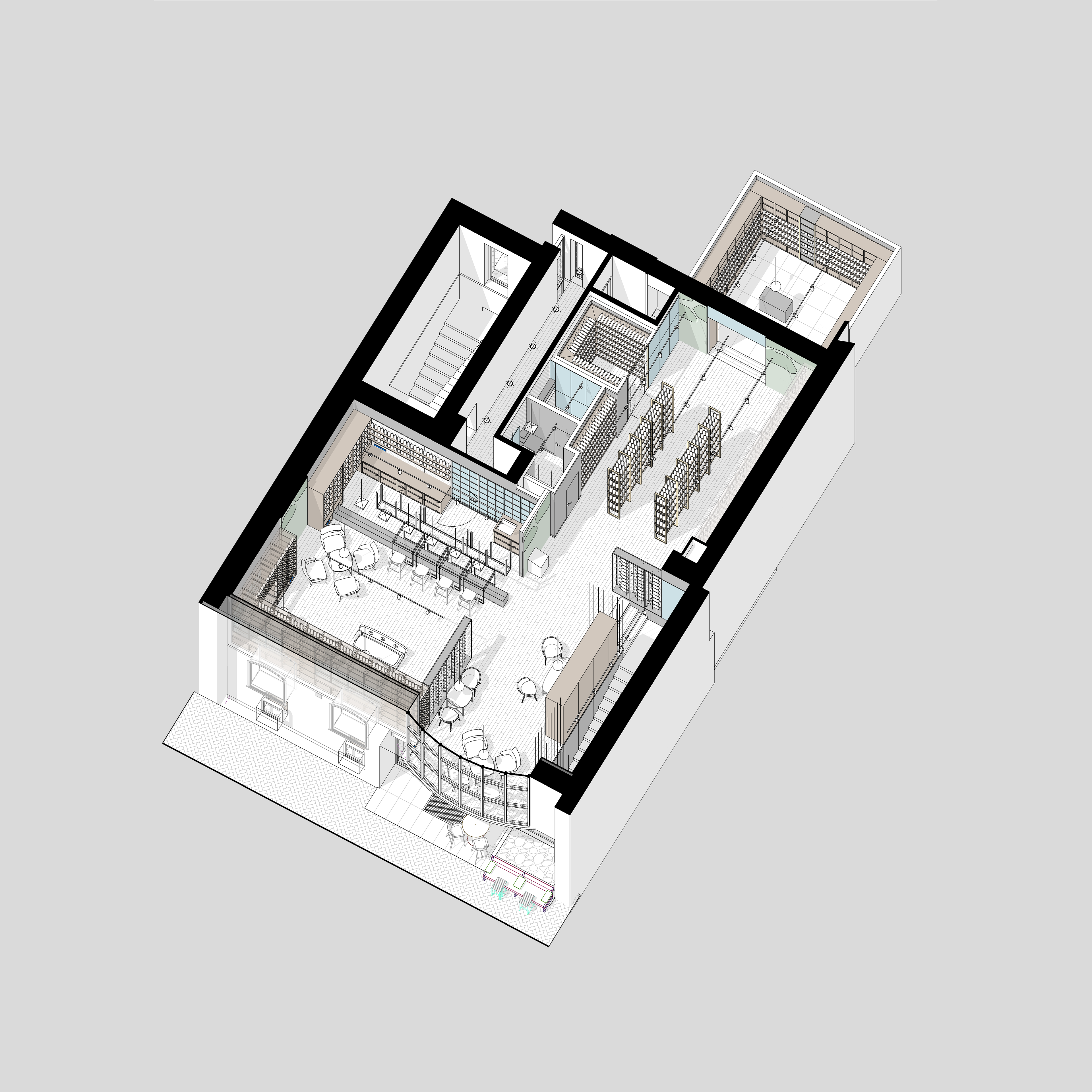
TYPOLOGY: Commercial |
concept wine store & restaurant
LOCATION:
Dnipro, Ukraine
SIZE:
200 sq.m
Since 2019
↑
Back to Top